Search

Leave a Message

Thank you for your message. We will be in touch with you shortly.

Explore Our Properties

Property Description

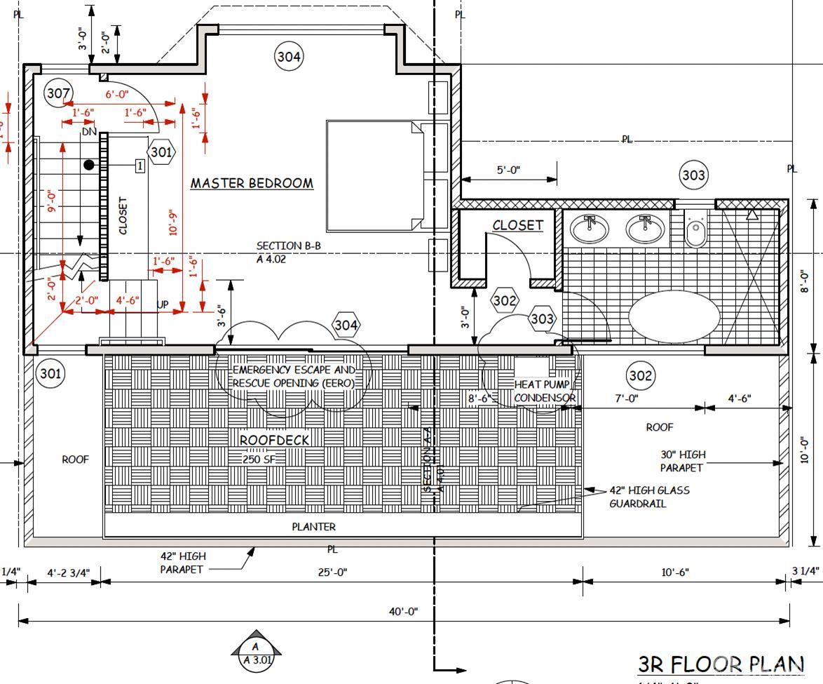
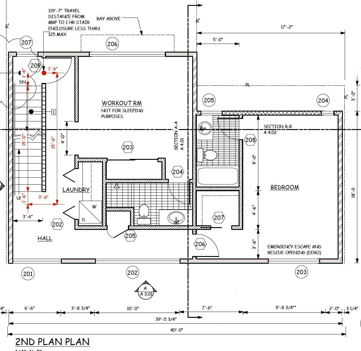
Approved plans ready to be picked up from DBI! (per seller) | One Helen St offers its next owner the opportunity to build a spectacular, brand new single family home in one of San Francisco's most coveted neighborhoods, Nob Hill. The current parcel consists of a vacant 4-car garage, and the approved plans call to demolish the garage and erect a 4 story, 2,492 sq. ft., 3 bedroom, 3 full bathroom, 2 powder room (per approved plans) single family home. The four levels will consist of: 1st level - ground floor entrance, on Helen St: great room (kitchen/ living/dining) opening onto the rear garden, plus powder room and garage; 2nd level - bedroom #1 with ensuite bathroom & walk-in closet, workout room with ensuite bathroom, and laundry; 3rd level - primary ensuite bedroom #2 with 2 closets (one walk-in), and patio attached facing Helen St; 4th level - bedroom #3, powder room, and terrace. Incredible and walkable location on Nob Hill in the heart of San Francisco with a 99 Walk Score and a 100 Transit Score. Daily errands are simple with staples such as Whole Foods Market and Trader Joe's just around the corner. Local cafes and restaurants dot Hyde St, and world-class shopping in Union Square is easily accessible. The Embarcadero waterfront, Pacific Heights, and theatres are all just moments away, allowing you to enjoy city living while being tucked away on a quiet street. The property's current legal zoning is commercial and has a recorded NSR variance to convert it to a single family home, Variance Application number 2023-010368VAR, recorded on 11/25/2024. Potential buyers are advised to investigate this and approved plans to their satisfaction. Listing agents and Vanguard Properties make no representations of legality of the land use, variance, or plans.

Overview

Open House
3/3/2026 9:00AM - 11:00AM PST
Property Status
For Sale
Lot Size
1,271.95 Sq.Ft.
MLS ID
426107995
Property Type
Land

Features & Amenities

Neighborhood
San Francisco
Utilites
Electricity Available
Sales Price
$1,099,000

Downloads

1 Helen Street

Schedule a Tour

We would love to help you see this beautiful home! As a full-service brokerage, we can help you tour. Please submit an offer, and answer questions about the buying process.

Thank you

for your interest in 1 Helen Street, San Francisco, CA 94109

1 Helen Street
Navigate
San Francisco

Explore San Francisco

read more
1 Helen Street
explore in 3d

Mortgage Calculator

Estimate your monthly mortgage payment, including the principal and interest, property taxes, and HOA. Adjust the values to generate a more accurate rate.
$0,000 Your Payment 20 15 65
$0,000 Your Payment

I'm Interested In

1 Helen Street

or
  • CallFrank Nolan

    License #01300017

    (415) 377-3726
  • Follow Us On Instagram